Transparent, Traceable Measurement — Right from the Drawing
See exactly how quantities are measured, from on-screen markups to BIM element schedules, so every number is backed by visible evidence.
Our clients don’t just get numbers, they get proof. Each deliverable includes visual markups, tagged measurements, or BIM element schedules. Scroll down to see our sample deliverables and request your own quote.
PlanSwift Drawing Mark-Up
Clarity from the Very First Trace
- Every line tells a story: We trace and color-code each area, length, and count so you can immediately see what’s been measured, no hidden numbers, no surprises.
- Always up to date: Our take-offs are live-linked to QTO sheets, so revisions instantly refresh your quantities without rework.
- Review made easy: Visual markups make consultant sign-off smoother, reducing delays before tender or claim submission.
Sample prepared using PlanSwift demo drawing.
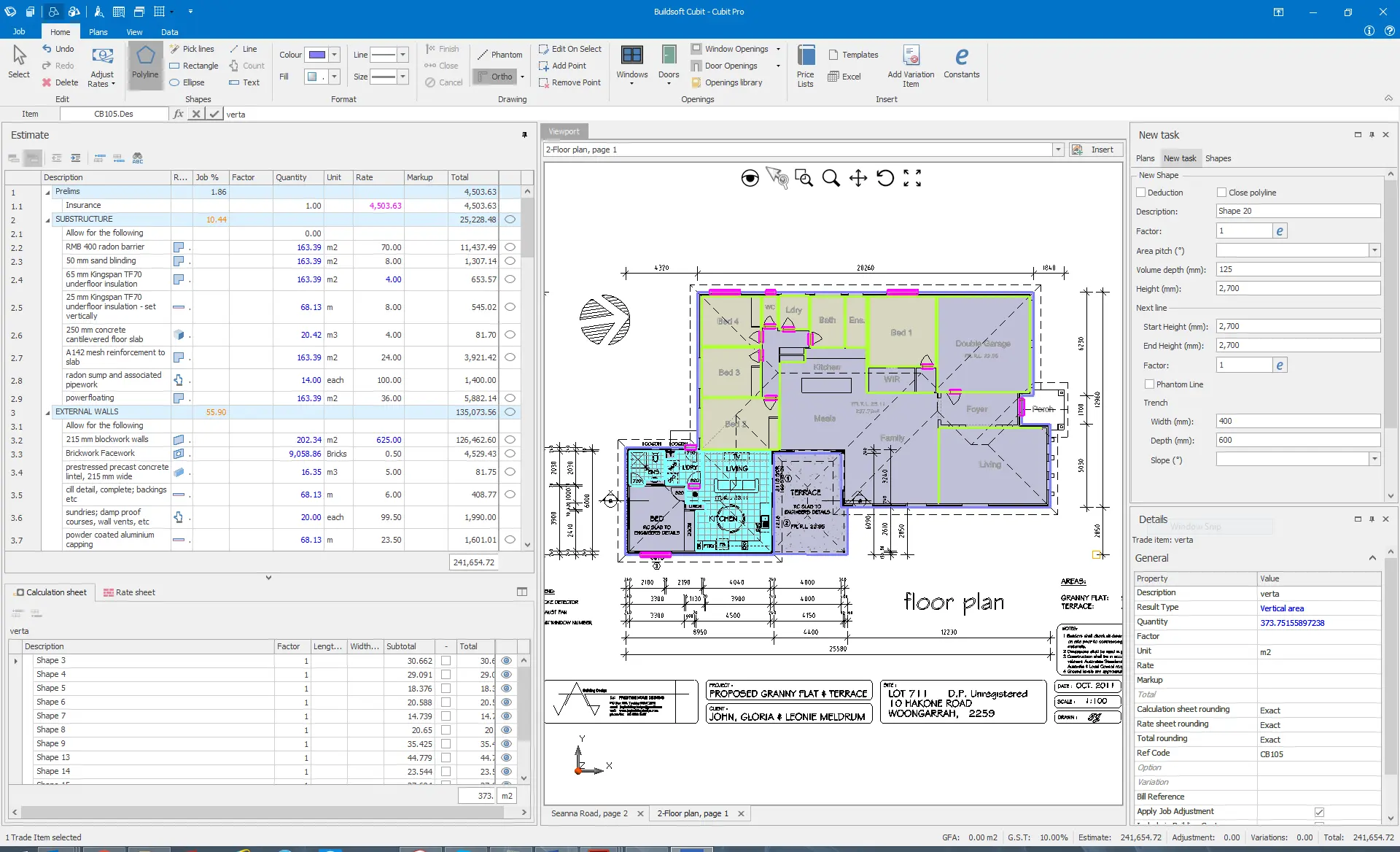
Area & Space Take-Off Cubit
Fast, Flexible Quantities for Every Stage
- Room-by-room clarity: We calculate areas precisely so you know your finishes and material coverage from day one.
- Reusable across stages: The same data works for tenders, variation valuations, and progress claims, no rework needed.
- Quick turnaround on updates: When drawings change, we reprocess quickly, keeping your numbers accurate and your programme on track.
Sample prepared using Cubit demo drawing.
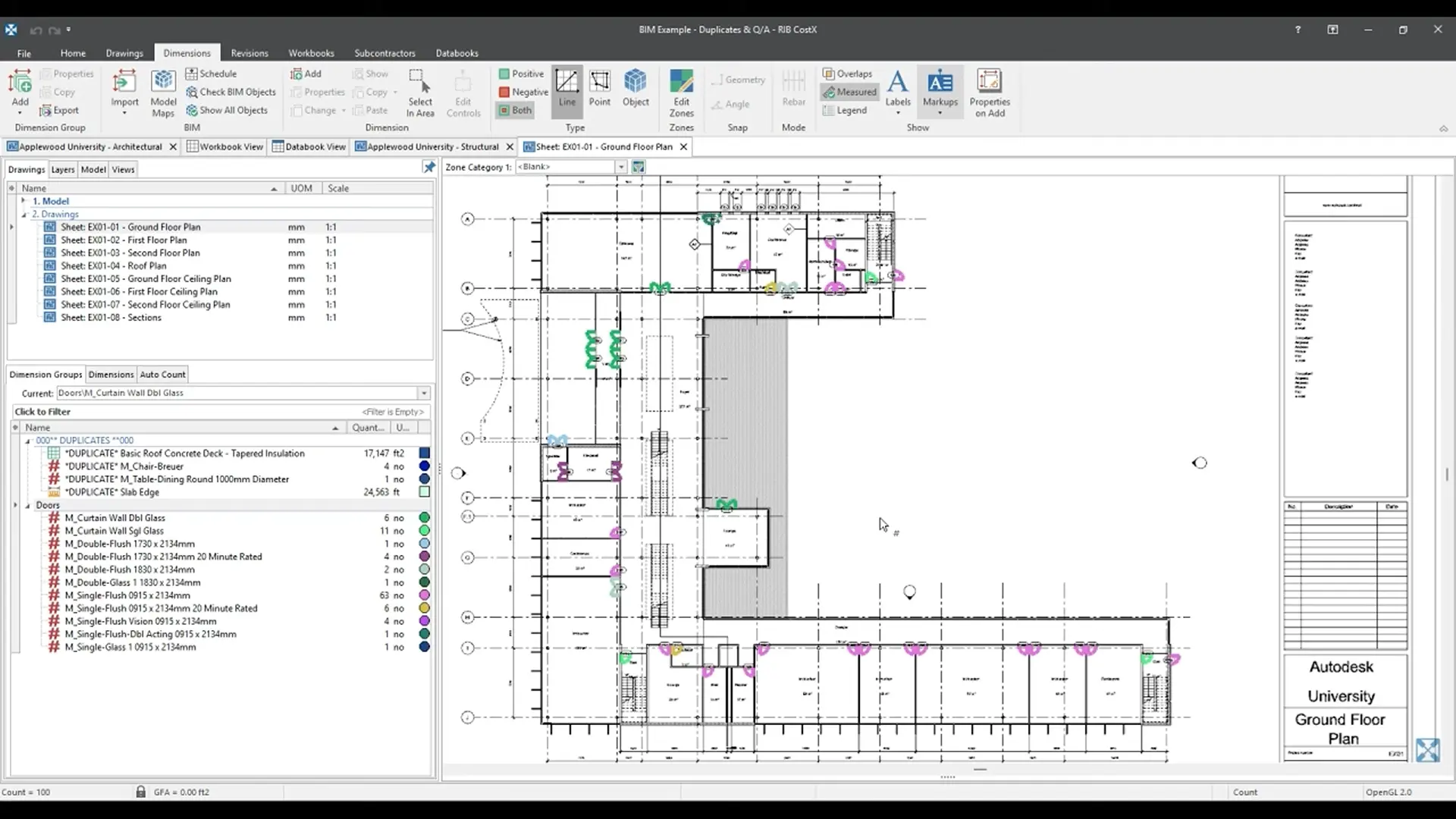
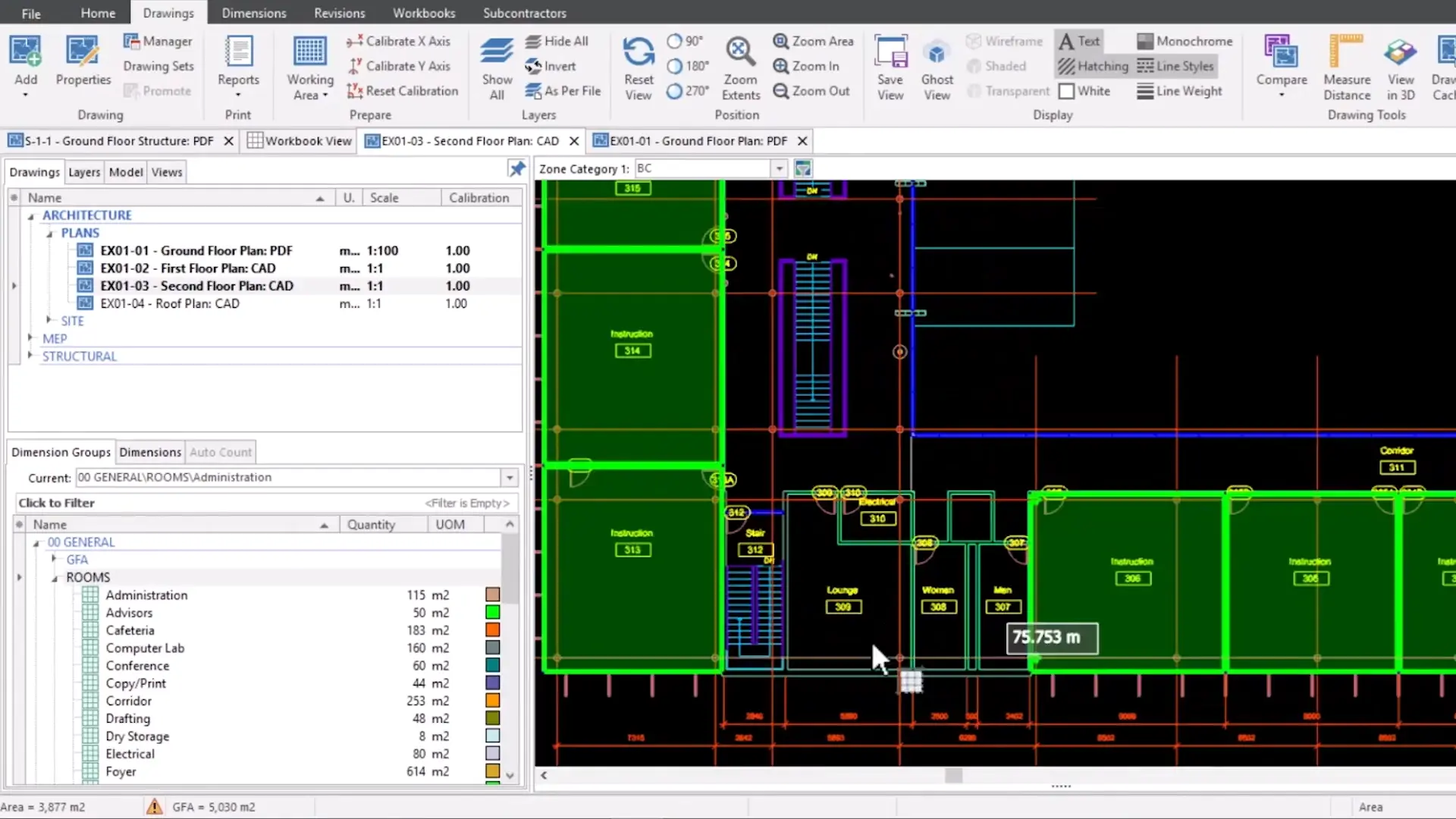
BIM Model Take-Off RIB CostX
Live-Linked Quantities from Your BIM Model
- Direct model integration: We extract quantities straight from your BIM elements, eliminating manual data entry errors.
- Always current: If the model changes, our schedules update instantly, keeping your pricing aligned with the latest design.
- Organised for action: Results are grouped by floor and location, so you can plan construction sequencing with confidence.
Sample prepared using RIB CostX demo drawing.
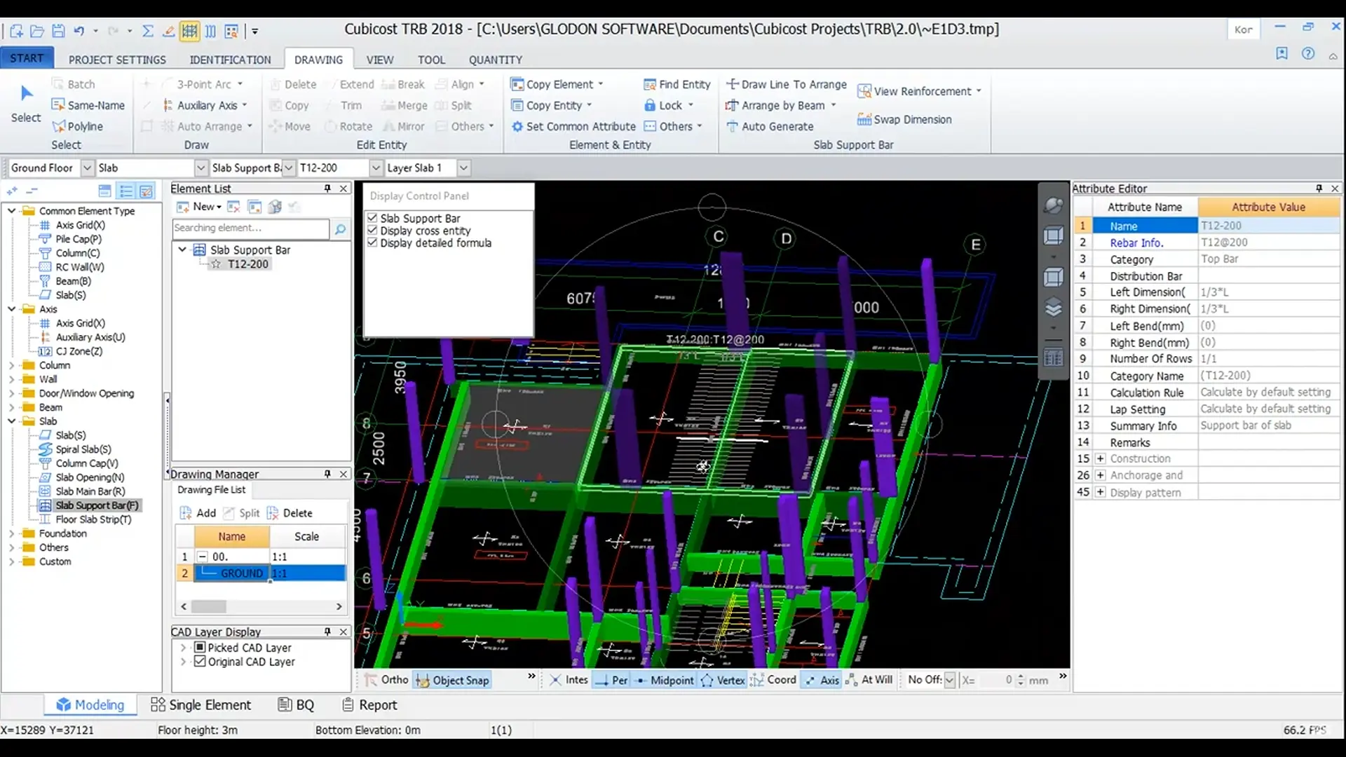
Structural Measurement Cubicost TRB
Accurate Rebar Weights Without the Manual Counting
Automated bar-by-bar calculation: Every rebar diameter, length, and bending shape is captured from the structural drawings, eliminating tedious manual counting.
Optimised for cutting lists: We generate precise weight summaries that can be used directly for bar bending schedules and fabrication planning.
Traceable and auditable: Each quantity is linked to its drawing reference, so you can confidently defend your reinforcement estimates and claims.
Sample prepared using Cubicost TRB demo drawing.
Multi-Trade Take-Off Cubicost TAS
All-in-One Architecture, Structure & Finish Quantities
- Concrete & formwork automatically measured: TAS handles volumes, shuttering (formwork), and structural surfaces so you don’t need separate tools for structure.
- Finish & architectural coverage included: Floor, ceiling, wall finishes, openings and architectural elements are measured alongside structural items, aligning with industry rules.
- Fast updates and model-based segmentation: When drawings or models change, TAS quickly refreshes quantities by level, zone, or floor so your BOQs stay accurate and your bids stay credible.
Sample prepared using Cubicost TAS demo drawing.
2D PDF Mark-Ups Bluebeam Revu
A Clear Record of Every Change
- No guesswork on revisions: We cloud every drawing change so you know exactly where quantities have shifted.
- Context-rich measurement notes: Each markup includes callouts explaining why the change matters, strengthening your variation claims.
- Permanent documentation: You get a full audit trail, making consultant approval faster and protecting you in disputes.
Sample prepared using Bluebeam Revu demo drawing.
Ready to Leverage Our Expertise?
Let our experienced team handle your quantity take-off needs while you focus on growing your contracting business


















































